










2 Bedrooms 1 Bathroom 2 Reception
Semi Detached House - Freehold
12 Photos
Nottingham
Being Sold via Secure Sale online bidding. Terms & Conditions apply. Starting Bid £100,000. Offered for sale is this two bedroom end terrace house having double glazing and gas central heating. Perfect investment or refurbishment for a home the property requires updating with the accommodation comprising of lounge, inner hall, dining room and kitchen to the ground floor. Two bedrooms and bathroom to the first floor. Outside there is a garden to the rear. Viewing is recommended.
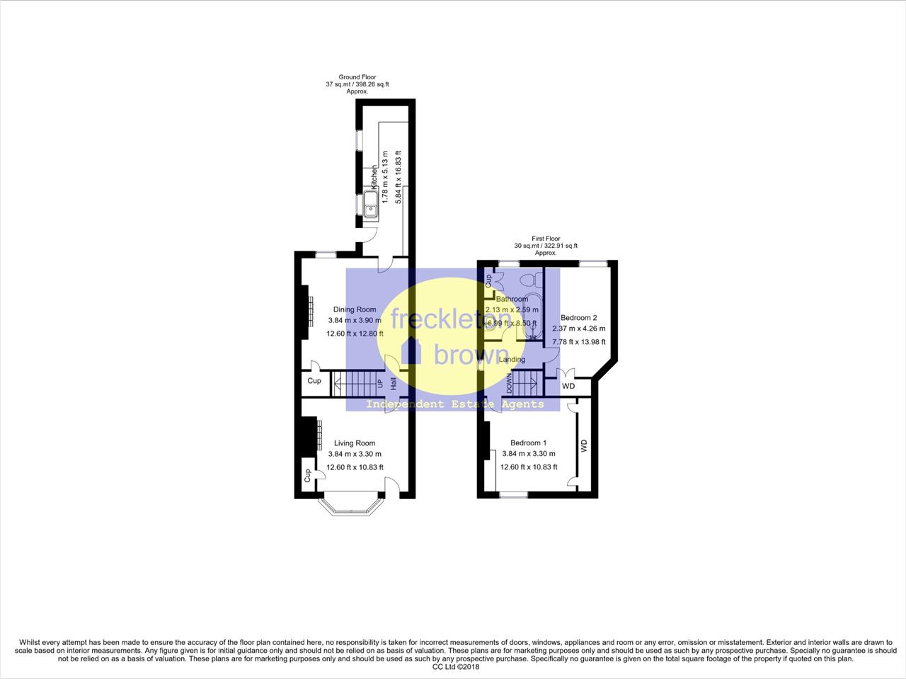
Lounge 4.06m (13'4") x 3.76m (12'4")
upvc door to the front elevation and upvc bay window to the front elevation. gas fire (not tested) with Adams style fire surround, coving to the ceiling and central heating radiator.
Inner Hall
Access to the dining room and staircase to the first floor.
Dining Room 3.78m (12'5") x 3.66m (12'0")
upvc double glazed window to the rear elevation, storage cupboard, gas fire (not tested) with fire surround, under stairs storage cupboard. Access to the kitchen. Central heating radiator.
Kitchen 5.18m (17'0") x 1.78m (5'10")
Two upvc double glazed windows to the side elevation, door to the side elevation, stainless steel sink unit with mixer taps and side drainer inset into work surfaces, base and wall units.
First Floor/Landing
Access to the two bedrooms and bathroom.
Bedroom One 3.76m (12'4") x 3.23m (10'7")
Double glazed window to the front elevation, fitted wardrobes and central heating radiator.
Bedroom Two 4.19m (13'9") x 2.31m (7'7")
Double glazed window to the rear elevation, fitted wardrobes and central heating radiator.
Bathroom
Frosted double glazed window to the rear elevation, white suite comprising of panelled bath, wash hand basin with storage below ad low flush wc. Tiled splash back areas.
Outside
Paved area to the front with wrought iron fence and gate. Paved garden to the rear and additional enclosed garden.
Auctioneers Additional Comments
Pattinson Auction are working in Partnership with the marketing agent on this online auction sale and are referred to below as 'The Auctioneer'.
This auction lot is being sold either under conditional (Modern) or unconditional (Traditional) auction terms and overseen by the auctioneer in partnership with the marketing agent. The property is available to be viewed strictly by appointment only via the Marketing Agent or The Auctioneer. Bids can be made via the Marketing Agents or via The Auctioneers website.
Please be aware that any enquiry, bid or viewing of the subject property will require your details being shared between both any marketing agent and The Auctioneer in order that all matters can be dealt with effectively.
The property is being sold via a transparent online auction.
In order to submit a bid upon any property being marketed by The Auctioneer, all bidders/buyers will be required to adhere to a verification of identity process in accordance with Anti Money Laundering procedures. Bids can be submitted at any time and from anywhere.
Our verification process is in place to ensure that AML procedure are carried out in accordance with the law.
The advertised price is commonly referred to as a ‘Starting Bid’ or ‘Guide Price’ and is accompanied by a ‘Reserve Price’. The ‘Reserve Price’ is confidential to the seller and the auctioneer and will typically be within a range above or below 10% of the ‘Guide Price’ / ‘Starting Bid’.
These prices are subject to change
An auction can be closed at any time with the auctioneer permitting for the property (the lot) to be sold prior to the end of the auction.
Auctioneers Additional Comments
A Legal Pack associated with this particular property is available to view upon request and contains details relevant to the legal documentation enabling all interested parties to make an informed decision prior to bidding. The Legal Pack will also outline the buyers’ obligations and sellers’ commitments. It is strongly advised that you seek the counsel of a solicitor prior to proceeding with any property and/or Land Title purchase.
In order to secure the property and ensure commitment from the seller, upon exchange of contracts the successful bidder will be expected to pay a non-refundable deposit equivalent to 5% of the purchase price of the property. The deposit will be a contribution to the purchase price. A non-refundable reservation fee of up to 6% inc VAT (subject to a minimum of £7,200 inc VAT) is also required to be paid upon agreement of sale. The Reservation Fee is in addition to the agreed purchase price and consideration should be made by the purchaser in relation to any Stamp Duty Land Tax liability associated with overall purchase costs.
Both the Marketing Agent and The Auctioneer may believe necessary or beneficial to the customer to pass their details to third party service suppliers, from which a referral fee may be obtained. There is no requirement or indeed obligation to use these recommended suppliers or services
Reference: EW2357
Disclaimer
These particulars are intended to give a fair description of the property but their accuracy cannot be guaranteed, and they do not constitute an offer of contract. Intending purchasers must rely on their own inspection of the property. None of the above appliances/services have been tested by ourselves. We recommend purchasers arrange for a qualified person to check all appliances/services before legal commitment.
Contact freckleton brown for more details
Share via social media