











2 Bedrooms 1 Bathroom 1 Reception
Flat/Apartment - Freehold
13 Photos
Nottingham
Available 31 Jan
Unfurnished
£795 Deposit
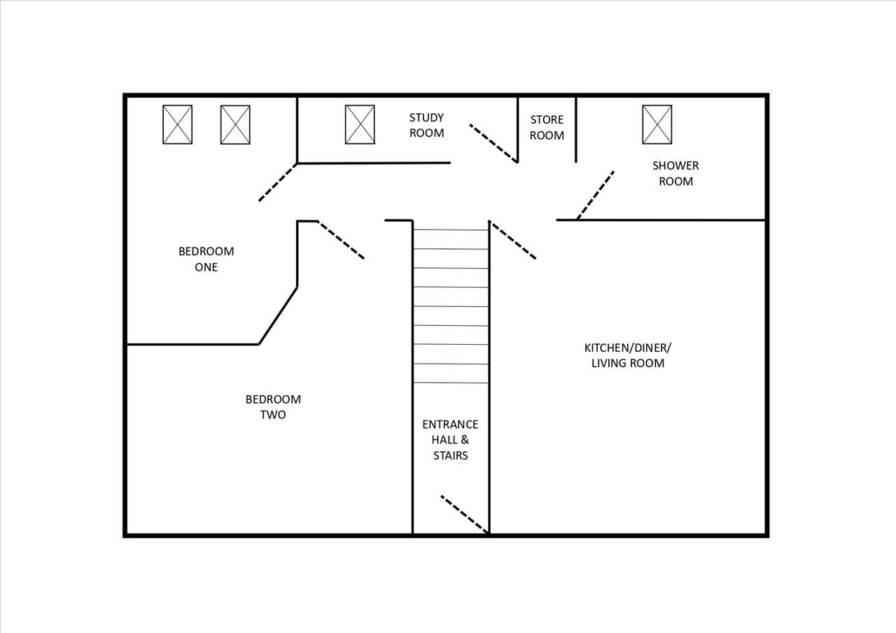
EXTRA LARGE 2 BED APPARTMENT OF 73 SQ METRES
Modern, new build Two-Bedroom Apartment in Over-50s Community, built to the highest standard using quality
materials by a local builder
Brand new first floor apartment in a sought-after over-50s development with only 22 properties.
This well maintained site with offers a safe, comfortable and community feel and is next to the local park.
This apartment delvers light-filled rooms that have been designed to offer style, comfort, convenience and plenty of storage areas. The modern open-plan layout delivers spacious open-plan living area that connects the living, dining, and kitchen areas. An additional study room delivers the perfect extra ‘private room’ for those reflective moments. The two double bedrooms are of a good size. The ultra modern shower room is fitted with contemporary fixtures and a stylish finish. Access is via stairs, making it ideally suited to individuals or couples who have good mobility. All the residents value the quiet, peaceful community of like-minded neighbors, all aged 50 and over where they can share the communal garden areas. A dedicated parking space is allocated to the apartment This apartment is perfect if you are seeking a low-maintenance lifestyle in a well-managed development. Whether you're downsizing, retiring, or simply looking for peace and security, this apartment will be just right for you. This is a unique opportunity to rent a very large apartment, contact us today.
Maintenance Fee of £25 per month includes
- Car Park/Road upkeep
- Buildings Insurance
- Bins
- General maintenance of the site, such as fences, planting/trees (tenant responsible for own rear garden area such as weeding)
- Outdoor lighting
- Any external building maintenance that may be required, render, cladding, roofing
Reference: R1142
Tenant Fees
Permitted payments and tenant protection information
Permitted payments
For properties in England, the Tenant Fees Act 2019 means that in addition to rent, lettings agents can only charge tenants (or anyone acting on the tenant's behalf) the following permitted payments:
Holding deposits (a maximum of 1 week's rent);
Deposits (a maximum deposit of 5 weeks' rent for annual rent below £50,000, or 6 weeks' rent for annual rental of £50,000 and above);
Payments to change a tenancy agreement eg. change of sharer (capped at £50 or, if lower, any reasonable costs);
Payments associated with early termination of a tenancy (capped at the landlord's loss or the agent's reasonably incurred costs);
Utilities, communication services (eg. telephone, broadband), TV licence and council tax;
Interest payments for the late payment of rent (up to 3% above Bank of England's annual percentage rate);
Reasonable costs for replacement of lost keys or other security devices;
Contractual damages in the event of the tenant's default of a tenancy agreement; and
Any other permitted payments under the Tenant Fees Act 2019.
For properties in Wales, the Renting Homes (Fees etc.) (Wales) Bill , once enacted, means that in addition to rent, lettings agents can only charge tenants (or anyone acting on the tenant's behalf) the following permitted payments:
Holding deposits (a maximum of 1 week's rent);
Deposits;
Utilities, communication services (eg. telephone, broadband), TV licence and council tax;
Payments for the late payment of rent;
A breach of a term of the contract;
Any other permitted payments under the Renting Homes (Fees etc.) (Wales) Bill and regulations once enacted.
Tenant protection
In addition to publishing relevant fees, lettings agents are also required to publish details of:
the redress scheme they are a member of; and
the name of the approved or designated Client Money Protection scheme they are a member of (if any).
Disclaimer
These particulars are intended to give a fair description of the property but their accuracy cannot be guaranteed, and they do not constitute an offer of contract. Intending purchasers must rely on their own inspection of the property. None of the above appliances/services have been tested by ourselves. We recommend purchasers arrange for a qualified person to check all appliances/services before legal commitment.
Contact freckleton brown for more details
Share via social media